Vive cómodamente
Departamento 1
Desde $6,160,000*
Precio en preventa, sujeto a cambio sin previo aviso
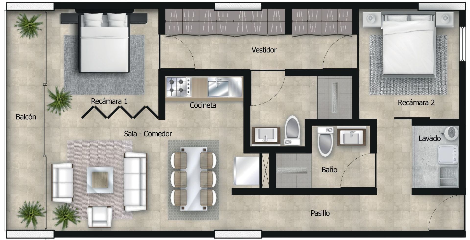
Espacio y Confort en 67.85 m². Descubre tu nuevo hogar en un departamento de 67.85 m², diseñado para ofrecerte comodidad y funcionalidad en cada rincón. Ubicado en un edificio de solo 19 departamentos, este espacio es perfecto para una vida moderna y llena de confort.

Espacios inteligentes. Ven y descubre este departamento de 2 recámaras, donde cada detalle está pensado para tu comodidad.
Características del Departamento:
- 2 recámaras: Espaciosas y confortables, ideales para el descanso y la privacidad.
- 2 baños: Moderno y bien equipado.
- Estancia-Comedor: Un área amplia y luminosa para disfrutar en familia.
- Área de Servicio: Práctica y bien organizada para tus necesidades diarias.
- 1 cajón de Estacionamiento: Exclusivo, asegurando la comodidad y seguridad de tu vehículo.








